400 Captain Neville Drive – Waterbury CT

An approximately 208,000 sf modern tilt-up concrete panel warehouse and industrial building on 20.50 acres, sitting at the footsteps of a 4-way interchange at Exit 25A on I-84 on the East side of Waterbury. This building has been fully re-conditioned by Cornerstone with multiple new loading doors, entrances, well-positioned and modern offices, and abundant car parking and trailer parking. Owned and managed by Cornerstone since 2012.

Property Re-Development:
Full Building Façade Renovation Subdivision of the Building
New Tenant Entrances & ADA Compliance New Electrical Lighting
Extensive Exterior & Interior Demolition Land Assemblage
Exterior, Interior Painting Upgrades Extensive Site Work
Partial Building Roof Replacement Parking Lot Development
New Storm Drainage Installation 17 Loading Docks; 1 Drive-In Doors
New Fire Protection Alarm System New HVAC Equipment Installation
New Life Safety Systems Landscaping Improvements
New Electrical Service and Plumbing Extensive General Construction
New Office Construction Building Security Upgrades
New Bathroom and Locker Room Facilities
Property Overview

Address: 400 Captain Neville Drive, Waterbury, CT 06705

Size: +/- 208,000 Sq Ft Premier Manufacturing / Warehouse / Distribution and Office Space

Lease Rate: Call for Details

Property Highlights
  • Immediate access to I-84 from a 4-way interchange
  • 16.5′ clear height
  • HVAC throughout the space
  • +/- 83,000 Sq Ft Manufacturing/Warehouse area
  • +/- 17,000 Sq Ft Office space
  • 7 docks / 1 drive door
  • On-site vehicle or trailer storage available
Property Features
  • Parking: +/- 570 spaces
  • Utilities:
    • Heat/Service: Gas (Eversource)
    • Electric Service: Eversource: 1800 AMP / 480V / 3 Phase
    • Water & Sewer: Public
  • HVAC: 100% throughout the space
  • Sprinklers: Yes (Wet)
Building Details
  • Construction: Masonry/Concrete
  • Roof: Rubber membrane
  • Floors: 2
  • Column Spacing: 50′ x 50′
  • Docks / Drive-in: 7 / 1
  • Ceiling Height: 16.5′
  • Built: 1972
Interior Breakdown
  • Main Level:
    • +/- 83,000 Sq Ft of Premier Manufacturing, Warehouse, and Distribution Area
    • Contiguous to +/- 10,000 Sq Ft Office Area
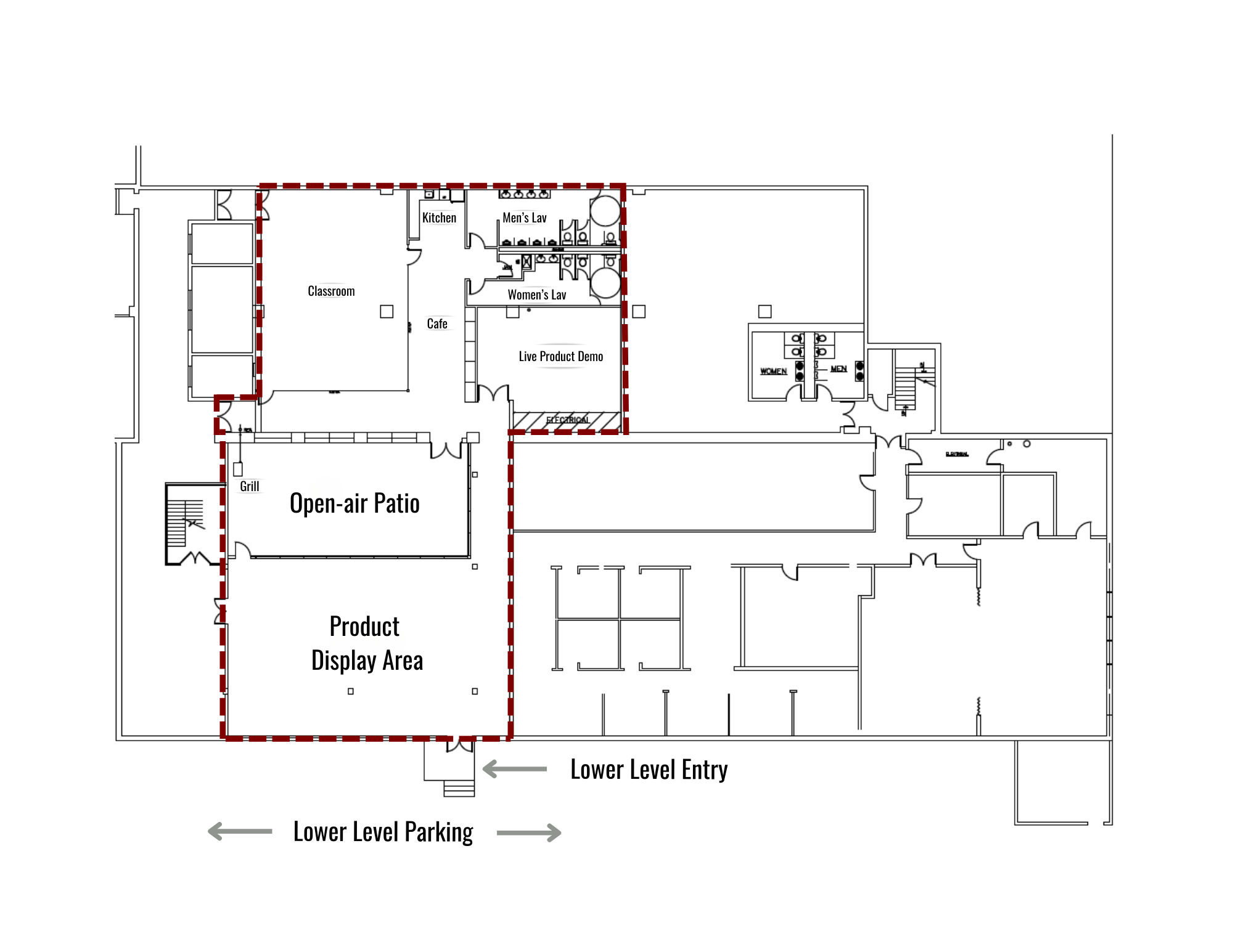
  • Lower Level:
    • +/- 7,000 Sq Ft Office Area built out as a showroom and training area with kitchen and restrooms
    • Adjacent private open-air patio with a gas grill station
Location Advantages

Direct access to Interstate 84 at the 4-way interchange at I-84 and Austin Road / Exit 25A.

Convenient proximity to major routes and services.

For Lease

400 Captain Neville Drive, Waterbury, CT 06705
10,000 +/- Sq Ft Premier Distribution & Office Space

Space Highlights
  • Immediate access to I-84 from 4-way interchange
  • +/- 7,000 Sq Ft single level office space with outdoor courtyard
  • +/- 3,000 Sq Ft of warehouse space
  • 3 drive-in doors
  • HVAC throughout
  • On-site vehicle or trailer storage available
  • Professionally owned and managed by Cornerstone Realty, Inc. and affiliates
Property Overview

This +/- 208,000 square foot industrial building offers approximately 10,000 Sq Ft of premier office / warehouse space. This premium location has direct access to Interstate 84 at the 4-way interchange at I-84 and Austin Road / Exit 25A.

Approximately 7,000 square feet of finished office space, built out as showroom and training areas with a kitchen and restrooms. This area connects directly to a private open-air patio with a gas grill station. The level also includes roughly 3,000 square feet of warehouse and storage space with three bay doors.

Lease Information
  • Size: +/- 10,000 Sq Ft
  • Term: 10+ Years
  • Lease Rate: $7.25 SF NNN
  • Zoning: IP
  • Availability: Negotiable
Mechanical Equipment
  • HVAC: 100% throughout space
  • Sprinklers: Yes / Wet
Utilities
  • Heat / Service: Gas / Eversource
  • Electric Service: Eversource
  • Water & Sewer: Public
  • Power: 1800 AMP / 480V / 3 Phase
Building Features
  • Construction: Masonry / Concrete
  • Roof: Rubber membrane
  • Floors: 2
  • Restrooms: Multiple
  • Column Spacing: 50′ x 50′
  • Docks / Drive-In: 3 Docks
  • Built: 1972
Parking

+/- 570 spaces

For More Information Contact:

Ryan Bessette
Leasing Representative & Licensed Real Estate Broker in CT
Cornerstone Realty, Inc.

Cell: (203) 802-7218
Office: (203) 597-0400 x327
Email: rbessette@cmcict.com

P.O. Box 151
240 East Aurora Street
Waterbury, CT 06708
www.criproperties.net

Click Here to Download the 400 Captain Neville Drive Lease Sheet.

Spaces Available for Rent

Contact us about this property